ÁªÏµÖйú¡¤½ðɳ³Çjs93Ïß·¼ì²âÖÐÐÄ(¹É·Ý)ÓÐÏÞ¹«Ë¾-¹Ù·½ÍøÕ¾

ÊÖ»ú£ºÍô˾Àí15802760502
ÓÊÏ䣺hezi027@qq.com
QQ£º3212587206
µØµã£ºÎ人Êй¤¾ßºþÇø´´¹È·20ºÅ¿Æ´´ÖÐÐÄ22¶°
Ïà¹ØÎÄÕÂ
- 1¸É»õ·ÖÏíØÎ人Öйú¡¤½ðɳ³Çjs93Ïß·¼ì²âÖÐÐÄ(¹É·Ý)ÓÐÏÞ¹«Ë¾-¹Ù·½ÍøÕ¾ÖÇÄܼì²âÖÎÀíϵͳÏÈÈÝ
- 2¸É»õ·ÖÏíØÎ人Öйú¡¤½ðɳ³Çjs93Ïß·¼ì²âÖÐÐÄ(¹É·Ý)ÓÐÏÞ¹«Ë¾-¹Ù·½ÍøÕ¾Çå¾²¹¤Óþ߼ì²âÖÎÀíϵͳ(ÔÆÆ½Ì¨)ÏÈÈÝ
- 3¸É»õ·ÖÏíØÁ½ÖÖÀ׵繥»÷×°±¸±ÈÕÕÓÅÈõµã
- 4¸É»õ·ÖÏíØ¾Ö·ÅÆÁÕÏÊұȵç´ÅÆÁÕÏÊÒÒªÇó¸ü¸ß
- 5¸É»õ·ÖÏíØÎ人Öйú¡¤½ðɳ³Çjs93Ïß·¼ì²âÖÐÐÄ(¹É·Ý)ÓÐÏÞ¹«Ë¾-¹Ù·½ÍøÕ¾²úÆ·ÓÅÊÆ
- 6¸É»õ·ÖÏíØÎ人Öйú¡¤½ðɳ³Çjs93Ïß·¼ì²âÖÐÐÄ(¹É·Ý)ÓÐÏÞ¹«Ë¾-¹Ù·½ÍøÕ¾Çå¾²¹¤Óþ߲úÆ·ÓÅÊÆ
- 7¸É»õ·ÖÏíØÎ人Öйú¡¤½ðɳ³Çjs93Ïß·¼ì²âÖÐÐÄ(¹É·Ý)ÓÐÏÞ¹«Ë¾-¹Ù·½ÍøÕ¾¾Ö·ÅÒDzî±ð¼°ÓÅÊÆ
- 8¸É»õ·ÖÏíØÎ人Öйú¡¤½ðɳ³Çjs93Ïß·¼ì²âÖÐÐÄ(¹É·Ý)ÓÐÏÞ¹«Ë¾-¹Ù·½ÍøÕ¾ÎÞ¾Ö·ÅÄÍѹ²âÊÔϵͳÓÅÊÆ
- 9¸É»õ·ÖÏíØÎ人Öйú¡¤½ðɳ³Çjs93Ïß·¼ì²âÖÐÐÄ(¹É·Ý)ÓÐÏÞ¹«Ë¾-¹Ù·½ÍøÕ¾À׵繥»÷²âÊÔϵͳÓÅÊÆ
- 10HZHL-400A-I ÈýÏàÖÇÄÜ»ØÂ·µç×è²âÊÔÒDZܿÓÖ¸ÄÏ
·çµç֪ʶ | dz̸·çÁ¦·¢µç»ú×éµÄÀ×µç·À»¤²½·¥
Ðû²¼Ê±¼ä£º2025-02-10 14:04:43ÈËÆø£º
±¾ÎÄÔڲο¼ÁË´ó×Úº£ÄÚÍâ·ÀÀ×±ê×¼¡¢ÎÄÏ׵Ļù´¡ÉÏ£¬£¬£¬£¬£¬²¢ÍŽá´ó×Ú»ú×éµÄÏÖʵ·ÀÀ×ÂÄÀú£¬£¬£¬£¬£¬ÕûÀí²¢¹éÄÉÁË·çÁ¦·¢µç»ú×éÓÐÓõķÀÀײ½·¥¡£¡£¡£¡£¡£¡£¡£
1. ½¨Éè·çÁ¦·¢µç»ú×é·ÀÀ×ϵͳµÄÐëÒªÐÔ
ÏÖÔÚ£¬£¬£¬£¬£¬Öйúº£ÄڵĴ󲿷ַçµç³¡ÂþÑÜÓÚ¶«±±¡¢»ª±±ºÍÎ÷±±µØÇø¡£¡£¡£¡£¡£¡£¡£½üЩÄ꣬£¬£¬£¬£¬Ëæ×Å·çÁ¦·¢µçÊÖÒյijÉÊìºÍÊг¡ÐèÇóµÄÔöÌí£¬£¬£¬£¬£¬Ô½À´Ô½¶àµÄÄÏ·½·çµç³¡ÒÑÂ½Ðø½¨ÉèÆðÀ´¡£¡£¡£¡£¡£¡£¡£²¢ÇÒ£¬£¬£¬£¬£¬ÄÏ·½µØÇøµÄÀ×±©ÌìÆøÏÔ×ÅÒª¶àÓÚ±±·½µØÇø£¬£¬£¬£¬£¬¸ø·ç»úÖÆÔìÉ̺ͷçµç³¡½¨Éè·½´øÀ´¼«´óµÄÄ¥Á·¡£¡£¡£¡£¡£¡£¡£
ÏÂͼΪij»ú×éÔâÀ×»÷Ë𻵵ÄʵÀý¡£¡£¡£¡£¡£¡£¡£
·çÁ¦·¢µç»ú×éÏà¶Ô¶¼»áͨË×½¨£¨¹¹£©ÖþÎïÓвî±ðµÄ·ÀÀ×ÌØÕ÷£¬£¬£¬£¬£¬ÏêϸÈçÏ£º
2. ·çÁ¦·¢µç»ú×éµÄͨÓ÷ÀÀײ½·¥
·çÁ¦·¢µç»ú×éµÄ·ÀÀ×ϵͳ°üÀ¨ÁË´ÓҶƬÖÁ»ù´¡µÄ¸÷¸ö»·½Ú£¬£¬£¬£¬£¬²¢ÇÒÿ¸ö»·½Ú¶¼²»¿É»òȱ¡£¡£¡£¡£¡£¡£¡£ÒÀ¾ÝIEC61400-24(2010) ¡¶·çÁ¦·¢µç»ú×é- µÚ24 ²¿·Ö: À×µç·À»¤¡·µÈÏà¹Ø±ê×¼£¬£¬£¬£¬£¬·çÁ¦·¢µç»ú×éµÄ·ÀÀײ½·¥Ö÷ÒªÓÐÒÔϼ¸¸ö·½Ãæ¡£¡£¡£¡£¡£¡£¡£

2.7.2 ·çÁ¦·¢µç»ú×éÖеçÓ¿±£»£»£»£»£»£»¤Æ÷µÄ×°ÖÃλÖᣡ£¡£¡£¡£¡£¡£Æ¾Ö¤·çÁ¦·¢µç»ú×éµçÆøµç×Óϵͳ¿òͼºÍ·ÀÀ×Çø£¨¼ò³ÆLPZ£©»®·ÖÔÔò£¬£¬£¬£¬£¬Ó¦ÔÚÈçÏÂλÖÃ×°ÖÃSPD£º
3. ÓÀ´ÅÖ±Çý·çÁ¦·¢µç»ú×é·ÀÀײ½·¥
ÓÀ´ÅÖ±Çý·çÁ¦·¢µç»ú×éµÄ·ÀÀײ½·¥³ý¸úÉÏÊöµÄ·çÁ¦·¢µç»ú×éͨÓò½·¥ÏàͬÍ⣬£¬£¬£¬£¬»¹Ó¦¾ßÓÐÒÔÏ·À»¤²½·¥¡£¡£¡£¡£¡£¡£¡£

4.С½á
“Ô¤·ÀʤÓÚÖÎÀí”ÊǶԷÀÀ×ÊÂÇé×îºÃµÄÚ¹ÊÍ£¬£¬£¬£¬£¬×ÝÈ»½ÏÁ¿ÍêÉÆµÄ·ÀÀ×ϵͳÒѾ½¨É裬£¬£¬£¬£¬Õվɲ»¿É¹»ÍêÈ«µÖÓùÀ×»÷µÄΣº¦¡£¡£¡£¡£¡£¡£¡£ÒÔÊÇ£¬£¬£¬£¬£¬ÔÚ·çÁ¦·¢µç»ú×éÆÕ±é½ÓÄÉÓÐÓõķÀÀ×±£»£»£»£»£»£»¤ÊÖÒÕµÄͬʱ£¬£¬£¬£¬£¬ ΪÁËÖ»¹ÜïÔÌ·çÁ¦·¢µç»ú×éÔâÊÜÀ×»÷µÄΣÏÕ£¬£¬£¬£¬£¬ ½¨ÒéÔÚ·ç»ú×°ÖÃ֮ǰ£¬£¬£¬£¬£¬¼´¾ÙÐзçµç³¡µÄÍýÏëÉè¼Æ¼°Î¢¹Ûѡַʱ£¬£¬£¬£¬£¬½«·ç»úµÄ·ÀÀ××÷ΪӰÏìÒòËØÖ®Ò»¼ÓÒÔ˼Á¿£¬£¬£¬£¬£¬´Ó¶øÈ·±£·çÁ¦·¢µç»ú×éÇå¾²ÓÐÓõÄÔËÐС£¡£¡£¡£¡£¡£¡£
1. ½¨Éè·çÁ¦·¢µç»ú×é·ÀÀ×ϵͳµÄÐëÒªÐÔ
ÏÖÔÚ£¬£¬£¬£¬£¬Öйúº£ÄڵĴ󲿷ַçµç³¡ÂþÑÜÓÚ¶«±±¡¢»ª±±ºÍÎ÷±±µØÇø¡£¡£¡£¡£¡£¡£¡£½üЩÄ꣬£¬£¬£¬£¬Ëæ×Å·çÁ¦·¢µçÊÖÒյijÉÊìºÍÊг¡ÐèÇóµÄÔöÌí£¬£¬£¬£¬£¬Ô½À´Ô½¶àµÄÄÏ·½·çµç³¡ÒÑÂ½Ðø½¨ÉèÆðÀ´¡£¡£¡£¡£¡£¡£¡£²¢ÇÒ£¬£¬£¬£¬£¬ÄÏ·½µØÇøµÄÀ×±©ÌìÆøÏÔ×ÅÒª¶àÓÚ±±·½µØÇø£¬£¬£¬£¬£¬¸ø·ç»úÖÆÔìÉ̺ͷçµç³¡½¨Éè·½´øÀ´¼«´óµÄÄ¥Á·¡£¡£¡£¡£¡£¡£¡£
ÏÂͼΪij»ú×éÔâÀ×»÷Ë𻵵ÄʵÀý¡£¡£¡£¡£¡£¡£¡£

·çÁ¦·¢µç»ú×éÏà¶Ô¶¼»áͨË×½¨£¨¹¹£©ÖþÎïÓвî±ðµÄ·ÀÀ×ÌØÕ÷£¬£¬£¬£¬£¬ÏêϸÈçÏ£º
——·çÁ¦·¢µç»ú×éÊDZÈÖÜΧÎïÌåÒª¸ß¾þÐÞ½¨Îï¡£¡£¡£¡£¡£¡£¡£
——·çÁ¦·¢µç»ú×é¾³£×°ÖÃÔÚºÜÊÇÈÝÒ×Êܵ½À×»÷µÄÔ°µØ¡£¡£¡£¡£¡£¡£¡£
——·çÁ¦·¢µç»ú×éµÄÐí¶à̻¶²¿¼þ£¬£¬£¬£¬£¬ÈçҶƬºÍ»ú²ÕÕÖÍùÍùÓɲ»¿ÉÔâÊÜÖ±»÷À׵ĸ´ºÏÖÊÁÏÖÆ³É¡£¡£¡£¡£¡£¡£¡£¡¡
—— ҶƬ¡¢ÂÖ챡¢·¢µç»úÓë»ú²ÕÊÇÏà¶ÔÐýתµÄ£¬£¬£¬£¬£¬µ¹ÔË´«µ¼À×µçÁ÷¡£¡£¡£¡£¡£¡£¡£
——À×µçÁ÷½«Í¨¹ý·çÁ¦·¢µç»ú×éµÄ½ðÊô½á¹¹´«µ¼µ½´óµØ£¬£¬£¬£¬£¬Òò´Ë£¬£¬£¬£¬£¬ÏÖʵÉϴ󲿷ÖÀ×µçÁ÷½«Á÷¾»ò¿¿½üËùÓеĻú×鲿¼þ¡£¡£¡£¡£¡£¡£¡£
——·çµç³¡µÄÍÁÈÀµç×èÂÊͨ³£½ÏÁ¿¸ß£¬£¬£¬£¬£¬½ÓµØÌõ¼þÇ·ºÃ¡£¡£¡£¡£¡£¡£¡£
——·çÁ¦·¢µç»ú×é¶¼ÉèÖÃÔÚ·ç´óµÄµØÇø£¬£¬£¬£¬£¬ÀýÈ纣°¶¡¢ÇðÁꡢɽ¼¹£¬£¬£¬£¬£¬¶øÕâЩµØÇøÕýÊÇÀ×µç¶à·¢Çø¡£¡£¡£¡£¡£¡£¡£Í¨³£·çÁ¦·¢µç»ú×éÉèÖÃÔÚ¸ßÓÚÖÜΧµØÇøµÄÖÆ¸ßµã£¬£¬£¬£¬£¬²¢ÇÒÔ¶ÀëÆäËü¸ß¾þÎïÌ壬£¬£¬£¬£¬Òò´ËËüÔ½·¢ÄÜÎüÒýÀ׵硣¡£¡£¡£¡£¡£¡£±ðµÄ£¬£¬£¬£¬£¬ÉèÖÃÔÚÇðÁêºÍɽ¼¹µÄ·çÁ¦·¢µç»ú×éµÄ½ÓµØ£¬£¬£¬£¬£¬ÕâЩµØÇøµÄÍÁÈÀµ¼µçÐÔÄÜÏà¶Ô½Ï²î¡£¡£¡£¡£¡£¡£¡£
——·çÁ¦·¢µç»ú×é¾³£×°ÖÃÔÚºÜÊÇÈÝÒ×Êܵ½À×»÷µÄÔ°µØ¡£¡£¡£¡£¡£¡£¡£
——·çÁ¦·¢µç»ú×éµÄÐí¶à̻¶²¿¼þ£¬£¬£¬£¬£¬ÈçҶƬºÍ»ú²ÕÕÖÍùÍùÓɲ»¿ÉÔâÊÜÖ±»÷À׵ĸ´ºÏÖÊÁÏÖÆ³É¡£¡£¡£¡£¡£¡£¡£¡¡
—— ҶƬ¡¢ÂÖ챡¢·¢µç»úÓë»ú²ÕÊÇÏà¶ÔÐýתµÄ£¬£¬£¬£¬£¬µ¹ÔË´«µ¼À×µçÁ÷¡£¡£¡£¡£¡£¡£¡£
——À×µçÁ÷½«Í¨¹ý·çÁ¦·¢µç»ú×éµÄ½ðÊô½á¹¹´«µ¼µ½´óµØ£¬£¬£¬£¬£¬Òò´Ë£¬£¬£¬£¬£¬ÏÖʵÉϴ󲿷ÖÀ×µçÁ÷½«Á÷¾»ò¿¿½üËùÓеĻú×鲿¼þ¡£¡£¡£¡£¡£¡£¡£
——·çµç³¡µÄÍÁÈÀµç×èÂÊͨ³£½ÏÁ¿¸ß£¬£¬£¬£¬£¬½ÓµØÌõ¼þÇ·ºÃ¡£¡£¡£¡£¡£¡£¡£
——·çÁ¦·¢µç»ú×é¶¼ÉèÖÃÔÚ·ç´óµÄµØÇø£¬£¬£¬£¬£¬ÀýÈ纣°¶¡¢ÇðÁꡢɽ¼¹£¬£¬£¬£¬£¬¶øÕâЩµØÇøÕýÊÇÀ×µç¶à·¢Çø¡£¡£¡£¡£¡£¡£¡£Í¨³£·çÁ¦·¢µç»ú×éÉèÖÃÔÚ¸ßÓÚÖÜΧµØÇøµÄÖÆ¸ßµã£¬£¬£¬£¬£¬²¢ÇÒÔ¶ÀëÆäËü¸ß¾þÎïÌ壬£¬£¬£¬£¬Òò´ËËüÔ½·¢ÄÜÎüÒýÀ׵硣¡£¡£¡£¡£¡£¡£±ðµÄ£¬£¬£¬£¬£¬ÉèÖÃÔÚÇðÁêºÍɽ¼¹µÄ·çÁ¦·¢µç»ú×éµÄ½ÓµØ£¬£¬£¬£¬£¬ÕâЩµØÇøµÄÍÁÈÀµ¼µçÐÔÄÜÏà¶Ô½Ï²î¡£¡£¡£¡£¡£¡£¡£
2. ·çÁ¦·¢µç»ú×éµÄͨÓ÷ÀÀײ½·¥
·çÁ¦·¢µç»ú×éµÄ·ÀÀ×ϵͳ°üÀ¨ÁË´ÓҶƬÖÁ»ù´¡µÄ¸÷¸ö»·½Ú£¬£¬£¬£¬£¬²¢ÇÒÿ¸ö»·½Ú¶¼²»¿É»òȱ¡£¡£¡£¡£¡£¡£¡£ÒÀ¾ÝIEC61400-24(2010) ¡¶·çÁ¦·¢µç»ú×é- µÚ24 ²¿·Ö: À×µç·À»¤¡·µÈÏà¹Ø±ê×¼£¬£¬£¬£¬£¬·çÁ¦·¢µç»ú×éµÄ·ÀÀײ½·¥Ö÷ÒªÓÐÒÔϼ¸¸ö·½Ãæ¡£¡£¡£¡£¡£¡£¡£
2.1 ҶƬ½ÓÉÁÆ÷¼°ÒýÏÂÏß¡¡
ҶƬ½ÓÉÁÆ÷ӦλÓÚҶƬÍâò£¬£¬£¬£¬£¬ÄܽØÊÕ¾ø´ó²¿·ÖµÄÀ×»÷¡£¡£¡£¡£¡£¡£¡£Ò¶Æ¬½ÓÉÁÆ÷ϵͳµÄÉè¼ÆÆ¾Ö¤ÑÏ¿áµÄ¼ì²âºÍÊÔÑéÀ´È·¶¨¡£¡£¡£¡£¡£¡£¡£½ÓÉÁÆ÷ÊýĿƾ֤2010 °æGL ¹æ·¶Ïà¹ØÒªÇó¾ÙÐÐÉè¼Æ¡£¡£¡£¡£¡£¡£¡£
ҶƬ½ÓÉÁÆ÷ӦλÓÚҶƬÍâò£¬£¬£¬£¬£¬ÄܽØÊÕ¾ø´ó²¿·ÖµÄÀ×»÷¡£¡£¡£¡£¡£¡£¡£Ò¶Æ¬½ÓÉÁÆ÷ϵͳµÄÉè¼ÆÆ¾Ö¤ÑÏ¿áµÄ¼ì²âºÍÊÔÑéÀ´È·¶¨¡£¡£¡£¡£¡£¡£¡£½ÓÉÁÆ÷ÊýĿƾ֤2010 °æGL ¹æ·¶Ïà¹ØÒªÇó¾ÙÐÐÉè¼Æ¡£¡£¡£¡£¡£¡£¡£

ÒýÏÂÏßÓ¦ºã¾Ã¿É¿¿ÅþÁ¬£¬£¬£¬£¬£¬²¢ÄÜÔâÊÜÀ×µçÁ÷±¬·¢µÄµç¡¢ÈÈ¡¢µç¶¯Á¦µÄÍŽṥ»÷¡£¡£¡£¡£¡£¡£¡£ÒýÏÂÏßÓ¦ÔÚ¾ÙÐÐÄ£ÄâÀ×»÷ÊÔÑéÒÔǰ¾Í×°ÖÃÔÚҶƬÉÏ£¬£¬£¬£¬£¬Ó¦ÓëҶƬһÆð¾ÙÐÐÄÍÊÜ»úеӦÁ¦µÄʵÑé¡£¡£¡£¡£¡£¡£¡£
2.2 ÂÖì±
ÂÖì±½ðÊô½á¹¹×Ô¼º¾ßÓÐÓÅÒìµÄµç´ÅÆÁÕÏЧ¹û£¬£¬£¬£¬£¬ÆäÀ×µç·À»¤Ö»Ðè½ÓÄɵȵçλÅþÁ¬¡£¡£¡£¡£¡£¡£¡£¶ÔÑÓÉìµ½ÂÖì±Íⲿ£¨³ýȥҶƬ¸ù²¿»ò»ú²Õ£©µÄµçÆøºÍ¿ØÖÆÏµÍ³»ØÂ·Ó¦½ÓÄÉÀ×µç·À»¤²½·¥¡£¡£¡£¡£¡£¡£¡£
2.3 »ú²Õ
½ðÊô»ú²Õ½á¹¹×ÔÈ»³ÉΪÀ×µç·À»¤ÏµÍ³µÄÒ»²¿·Ö£¬£¬£¬£¬£¬ Ó¦ÄܳÐÔØIEC62305-1 Ëù»®¶¨À×µç·À»¤Æ·¼¶µÄÀ×µçÁ÷¡£¡£¡£¡£¡£¡£¡£½ðÊô»ú²ÕÍâÕֺͽðÊô½á¹¹£¨Èç»ú²Õµ××ù£©Ó¦ÓëÒýÏÂÏßÅþÁ¬¡£¡£¡£¡£¡£¡£¡£
·Ç½ðÊô»ú²ÕÍâÕÖ£¨Èç²£Á§¸ÖÍâÕÖ£©Ó¦ÔöÉè×ã¹»´ó½ØÃæÍø¸ñÌõµÄ½ðÊôÍø¸ñ¡£¡£¡£¡£¡£¡£¡£
2.4 ËþͲ
½ðÊôËþͲ¸÷¶ÎÂäÖ®¼äÓ¦ÓÐÓÅÒìµÄµçÆøÅþÁ¬¡£¡£¡£¡£¡£¡£¡£¸÷¶ÎÂäÖ®¼ä³ýÁË×ÔÈ»µÄ½á¹¹ÅþÁ¬ÒÔÍ⻹ӦÓжàÌõÖ±½ÓµÄµçÆøÅþÁ¬¡£¡£¡£¡£¡£¡£¡£½ðÊôËþͲ¿É×÷ΪÓÅÒìµÄ×ÔÈ»ÒýÏÂÏߣ¬£¬£¬£¬£¬¸÷¶Î¶Ë²¿ºÍµ××ù»·Ó¦Òý³ö½ÓµØ¶Ë×Ó¡£¡£¡£¡£¡£¡£¡£
2.5 Öá³ÐºÍ³ÝÂÖÏä
ÂÖì±½ðÊô½á¹¹×Ô¼º¾ßÓÐÓÅÒìµÄµç´ÅÆÁÕÏЧ¹û£¬£¬£¬£¬£¬ÆäÀ×µç·À»¤Ö»Ðè½ÓÄɵȵçλÅþÁ¬¡£¡£¡£¡£¡£¡£¡£¶ÔÑÓÉìµ½ÂÖì±Íⲿ£¨³ýȥҶƬ¸ù²¿»ò»ú²Õ£©µÄµçÆøºÍ¿ØÖÆÏµÍ³»ØÂ·Ó¦½ÓÄÉÀ×µç·À»¤²½·¥¡£¡£¡£¡£¡£¡£¡£
2.3 »ú²Õ
½ðÊô»ú²Õ½á¹¹×ÔÈ»³ÉΪÀ×µç·À»¤ÏµÍ³µÄÒ»²¿·Ö£¬£¬£¬£¬£¬ Ó¦ÄܳÐÔØIEC62305-1 Ëù»®¶¨À×µç·À»¤Æ·¼¶µÄÀ×µçÁ÷¡£¡£¡£¡£¡£¡£¡£½ðÊô»ú²ÕÍâÕֺͽðÊô½á¹¹£¨Èç»ú²Õµ××ù£©Ó¦ÓëÒýÏÂÏßÅþÁ¬¡£¡£¡£¡£¡£¡£¡£
·Ç½ðÊô»ú²ÕÍâÕÖ£¨Èç²£Á§¸ÖÍâÕÖ£©Ó¦ÔöÉè×ã¹»´ó½ØÃæÍø¸ñÌõµÄ½ðÊôÍø¸ñ¡£¡£¡£¡£¡£¡£¡£
2.4 ËþͲ
½ðÊôËþͲ¸÷¶ÎÂäÖ®¼äÓ¦ÓÐÓÅÒìµÄµçÆøÅþÁ¬¡£¡£¡£¡£¡£¡£¡£¸÷¶ÎÂäÖ®¼ä³ýÁË×ÔÈ»µÄ½á¹¹ÅþÁ¬ÒÔÍ⻹ӦÓжàÌõÖ±½ÓµÄµçÆøÅþÁ¬¡£¡£¡£¡£¡£¡£¡£½ðÊôËþͲ¿É×÷ΪÓÅÒìµÄ×ÔÈ»ÒýÏÂÏߣ¬£¬£¬£¬£¬¸÷¶Î¶Ë²¿ºÍµ××ù»·Ó¦Òý³ö½ÓµØ¶Ë×Ó¡£¡£¡£¡£¡£¡£¡£
2.5 Öá³ÐºÍ³ÝÂÖÏä

Öá³ÐӦ֤ʵÄÜÔÚÕû¸öЧÀÍʱ´úÄÍÊÜ¿ÉÄÜÁ÷¹ý¶à´ÎÀ×µçÁ÷£¬£¬£¬£¬£¬²»È»Ó¦½ÓÄɽµµÍÀ×µçÁ÷Á÷¹ýÖá³ÐµÄ±£»£»£»£»£»£»¤²½·¥¡£¡£¡£¡£¡£¡£¡£¶Ô´¦ÓÚÀ×µçÁ÷ͨµÀµÄÖá³Ð³ÝÂÖ¡¢Öá³ÐÓëÁ¬ÖáÆ÷Ó¦½ÓÄÉÅÔ··ÖÁ÷ºÍ×è¶Ï¸ôÀëÏàÍŽáµÄ·½·¨¡£¡£¡£¡£¡£¡£¡£Í¨Ïò·¢µç»úµÄÁ¬ÖáÆ÷Ó¦½ÓÄɾøÔµ¸ôÀ룬£¬£¬£¬£¬ÌṩËùÐèµÄ¾øÔµÒÔ±£»£»£»£»£»£»¤·¢µç»úÃâÔâÀ×µçÁ÷ÇÖÈë·¢µç»úÖá¡£¡£¡£¡£¡£¡£¡£
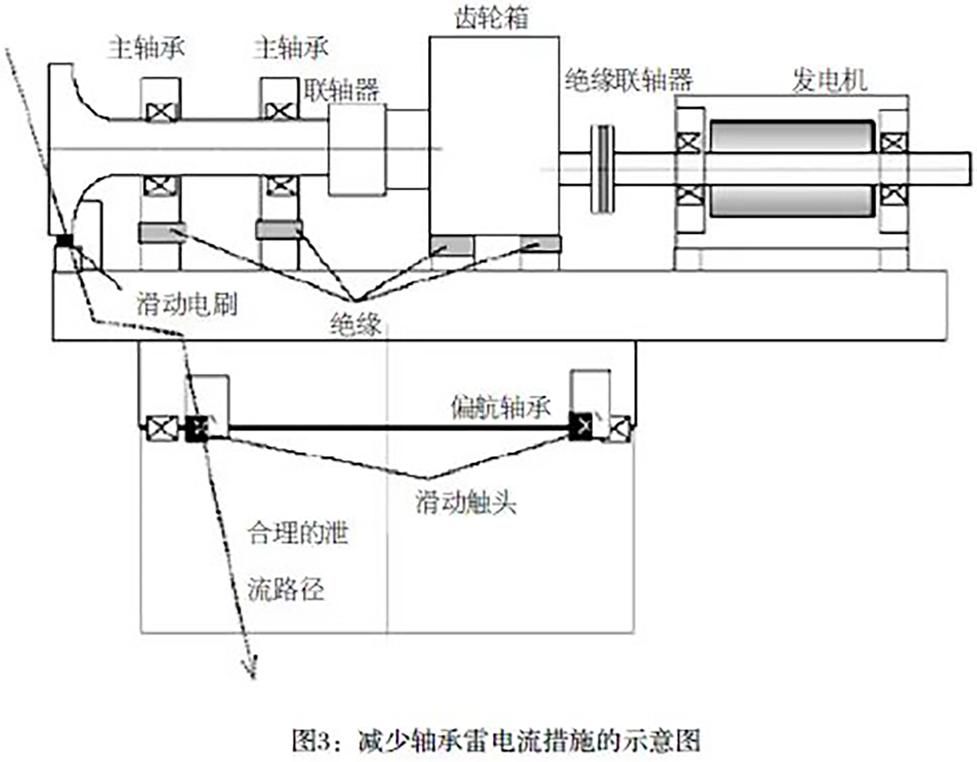
×è¶Ï¸ôÀëÊÇÖ¸ÔÚÖá³Ð»ò³ÝÂÖÏäÒÔ¼°ÆäËü¸ßËÙÖáµ½»ú²Õµ×°åµÄµçÁ÷ͨµÀÖвåÈë¾øÔµ²ã¡£¡£¡£¡£¡£¡£¡£ÏÂͼΪïÔÌÖá³ÐÀ×µçÁ÷²½·¥µÄʾÒâͼ¡£¡£¡£¡£¡£¡£¡£³ÝÂÖÏäºÍ·¢µç»úͨ¹ý»úеµ××ùµÄÅþÁ¬ÂÝ˨Óë½ÓµØ×°ÖÃÓ¦¼á³ÖÓÅÒìµÄÅþÁ¬¡£¡£¡£¡£¡£¡£¡£Èç³ÝÂÖÏä»ò·¢µç»úÓÃÈáÐÔ×èÄáÔª¼þÓë»úеµ××ùÅþÁ¬£¬£¬£¬£¬£¬ÔòËùÓÐ×èÄáÔª¼þÓ¦½ÓÄÉÓÐ×ã¹»½ØÃæ»ýµÄ±âÍ´ø¿ç½Ó¡£¡£¡£¡£¡£¡£¡£
2.6 ½ÓµØ×°ÖÃ
·çÁ¦·¢µç»ú×é½ÓµØ×°ÖÿÉʹÓÃ
×è¶Ï¸ôÀëÊÇÖ¸ÔÚÖá³Ð»ò³ÝÂÖÏäÒÔ¼°ÆäËü¸ßËÙÖáµ½»ú²Õµ×°åµÄµçÁ÷ͨµÀÖвåÈë¾øÔµ²ã¡£¡£¡£¡£¡£¡£¡£ÏÂͼΪïÔÌÖá³ÐÀ×µçÁ÷²½·¥µÄʾÒâͼ¡£¡£¡£¡£¡£¡£¡£³ÝÂÖÏäºÍ·¢µç»úͨ¹ý»úеµ××ùµÄÅþÁ¬ÂÝ˨Óë½ÓµØ×°ÖÃÓ¦¼á³ÖÓÅÒìµÄÅþÁ¬¡£¡£¡£¡£¡£¡£¡£Èç³ÝÂÖÏä»ò·¢µç»úÓÃÈáÐÔ×èÄáÔª¼þÓë»úеµ××ùÅþÁ¬£¬£¬£¬£¬£¬ÔòËùÓÐ×èÄáÔª¼þÓ¦½ÓÄÉÓÐ×ã¹»½ØÃæ»ýµÄ±âÍ´ø¿ç½Ó¡£¡£¡£¡£¡£¡£¡£
2.6 ½ÓµØ×°ÖÃ
·çÁ¦·¢µç»ú×é½ÓµØ×°ÖÿÉʹÓÃ

ËþͲµÄ¸Ö½î»ìÄýÍÁ»ù´¡×÷Ϊ¹²ÓýӵØ×°Ö㬣¬£¬£¬£¬³ýÓ¦Öª×ãÒÔÏÂËĸö»ù±¾ÒªÇóÒÔÍ⣬£¬£¬£¬£¬»¹ÒªÇкÏÀ×µç·À»¤µÄÒªÇ󣬣¬£¬£¬£¬Äܽ«¸ßƵºÍ¸ßÄÜÁ¿µÄÀ×µçÁ÷Çå¾²Ö¸µ¼ÈëµØ¡£¡£¡£¡£¡£¡£¡£Æä¹¤Æµ½ÓµØµç×èÒËСÓÚ4Ω¡£¡£¡£¡£¡£¡£¡£ÔÚ¸ßÍÁÈÀµç×èÂʵØÇø£¬£¬£¬£¬£¬Ó¦½ÓÄɲ½·¥½µµÍ½ÓµØµç×è¡£¡£¡£¡£¡£¡£¡£±¾»ú×éµÄ½ÓµØ×°ÖÃÓ¦ÓëÈô¸ÉÆäËü»ú×éºÍ·çµç³¡µÄ½ÓµØ×°ÖÃÏàÁ¬¡£¡£¡£¡£¡£¡£¡£
Ëĸö»ù±¾ÒªÇóÊÇ£º
Ëĸö»ù±¾ÒªÇóÊÇ£º
a) ½ÓµØ¹ÊÕÏ·ºÆðʱ£¬£¬£¬£¬£¬±¬·¢¿ç²½µçѹºÍ½Ó´¥µçѹ£¬£¬£¬£¬£¬ÐèÈ·±£ÈËÉíÇå¾²£»£»£»£»£»£»
b) ±ÜÃâ½ÓµØ¹ÊÕÏÒýÆð×°±¸µÄË𻵣»£»£»£»£»£»
c) ½ÓµØ¹ÊÕÏʱ½ÓµØ×°ÖÃÄÍÊÜÈÈ¡¢µç¶¯Á¦£»£»£»£»£»£»
d) ¾ßÓкã¾ÃµÄ»úеǿ¶ÈºÍÄÍÇÖÊ´ÐÔ¡£¡£¡£¡£¡£¡£¡£
b) ±ÜÃâ½ÓµØ¹ÊÕÏÒýÆð×°±¸µÄË𻵣»£»£»£»£»£»
c) ½ÓµØ¹ÊÕÏʱ½ÓµØ×°ÖÃÄÍÊÜÈÈ¡¢µç¶¯Á¦£»£»£»£»£»£»
d) ¾ßÓкã¾ÃµÄ»úеǿ¶ÈºÍÄÍÇÖÊ´ÐÔ¡£¡£¡£¡£¡£¡£¡£
2.7 µçÆøÏµÍ³·ÀÀ×
2.7.1 ·çÁ¦·¢µç»ú×éÖеçÓ¿±£»£»£»£»£»£»¤Æ÷µÄÀàÐÍ¡£¡£¡£¡£¡£¡£¡£·çÁ¦·¢µç»ú×éÄÚ²¿ÏµÍ³½ÓÄɵĵçÓ¿±£»£»£»£»£»£»¤Æ÷£¨¼ò³ÆSPD£©²úÆ·µÄÀàÐÍ£º
a) µÍѹµçԴϵͳÓÃSPD£ºÓÃÓÚ¶ÔµÍѹµçԴϵͳÖÐµÄµçÆø²¿¼þµÄ±£»£»£»£»£»£»¤£¬£¬£¬£¬£¬²úÆ·Ó¦ÇкÏGB 18802.1£»£»£»£»£»£»
b) ¿ØÖÆÓëÐÅϢϵͳÓÃSPD£ºÓÃÓÚ¶Ô¿ØÖƺÍÕÉÁ¿¡¢ÐźŻØÂ·µÄ±£»£»£»£»£»£»¤£¬£¬£¬£¬£¬²úÆ·Ó¦ÇкÏGB/T 18802.21£»£»£»£»£»£»¡¡
c) µÍѹÖ÷µçÁ¦µçÆøÏµÍ³ÓÃSPD£ºÓÃÓÚ¶Ô·çÁ¦·¢µç»ú¡¢±äƵÆ÷¼°Óйز¿¼þµÄ±£»£»£»£»£»£»¤¡£¡£¡£¡£¡£¡£¡£
b) ¿ØÖÆÓëÐÅϢϵͳÓÃSPD£ºÓÃÓÚ¶Ô¿ØÖƺÍÕÉÁ¿¡¢ÐźŻØÂ·µÄ±£»£»£»£»£»£»¤£¬£¬£¬£¬£¬²úÆ·Ó¦ÇкÏGB/T 18802.21£»£»£»£»£»£»¡¡
c) µÍѹÖ÷µçÁ¦µçÆøÏµÍ³ÓÃSPD£ºÓÃÓÚ¶Ô·çÁ¦·¢µç»ú¡¢±äƵÆ÷¼°Óйز¿¼þµÄ±£»£»£»£»£»£»¤¡£¡£¡£¡£¡£¡£¡£
2.7.2 ·çÁ¦·¢µç»ú×éÖеçÓ¿±£»£»£»£»£»£»¤Æ÷µÄ×°ÖÃλÖᣡ£¡£¡£¡£¡£¡£Æ¾Ö¤·çÁ¦·¢µç»ú×éµçÆøµç×Óϵͳ¿òͼºÍ·ÀÀ×Çø£¨¼ò³ÆLPZ£©»®·ÖÔÔò£¬£¬£¬£¬£¬Ó¦ÔÚÈçÏÂλÖÃ×°ÖÃSPD£º
a) ÔÚÿ¸öLPZ µÄÏß·Èë¿Ú´¦×°ÖÃSPD£º
ÔÚLPZ0B ½øÈëLPZ1 Çø´¦£ºÓ¦Ñ¡ÓÃÓÃIimp ²âÊÔµÄSPD£¨¢ñÀàÊÔÑ飩£¬£¬£¬£¬£¬×°ÖÃÔÚÀëLPZ1 ½çÏß¾¡¿ÉÄܽüµÄµØ·½£»£»£»£»£»£»ÔÚLPZ1 ½øÈëLPZ2 Çø»ò¸ü¸ßÇø´¦£ºÓ¦Ñ¡ÓÃÓÃIn ²âÊÔµÄSPD£¨¢òÀàÊÔÑ飩£¬£¬£¬£¬£¬×°ÖÃÔÚÀëLPZ2 ½çÏß»ò¸ü¸ßÇø¾¡¿ÉÄܽüµÄµØ·½¡£¡£¡£¡£¡£¡£¡£
b) ÔÚ²¿·ÖµçÆø×°±¸¶Ë²¿×°ÖÃSPD£º
ºÜÊÇÃô¸ÐµÄ×°±¸£¬£¬£¬£¬£¬ÓëLPZ Èë¿Ú´¦SPD ¾àÀë̫ԶµÄ×°±¸£¬£¬£¬£¬£¬ÄÚ²¿×ÌÈÅÔ´±¬·¢µÄµç´Å³¡ÓÐÍþвµÄ×°±¸¡£¡£¡£¡£¡£¡£¡£ÏÂͼÏÔʾÁËË«À¡Ê½·çÁ¦·¢µç»úÖ÷µçÁ¦µçÆø»ØÂ·ºÍµÍѹµçÔ´»ØÂ·ÖеçÓ¿±£»£»£»£»£»£»¤Æ÷×°ÖÃλÖÃÀý¡£¡£¡£¡£¡£¡£¡£
3. ÓÀ´ÅÖ±Çý·çÁ¦·¢µç»ú×é·ÀÀײ½·¥
ÓÀ´ÅÖ±Çý·çÁ¦·¢µç»ú×éµÄ·ÀÀײ½·¥³ý¸úÉÏÊöµÄ·çÁ¦·¢µç»ú×éͨÓò½·¥ÏàͬÍ⣬£¬£¬£¬£¬»¹Ó¦¾ßÓÐÒÔÏ·À»¤²½·¥¡£¡£¡£¡£¡£¡£¡£
3.1·çÁ¦·¢µç»ú×éµÄÀ׵籣»£»£»£»£»£»¤ÏµÍ³
3.1.1 ÓÀ´ÅÖ±Çý»ú×é·ÀÀ×½ÓµØÉè¼ÆÒÀ¾Ý¡£¡£¡£¡£¡£¡£¡£ÓÀ´ÅÖ±Çý»ú×é·ÀÀ׽ӵزÎÕÕÒÔϱê×¼Éè¼Æ¡£¡£¡£¡£¡£¡£¡£
GB 50057-94£¨2010£©¡¡ÐÞ½¨Îï·ÀÀ×Éè¼Æ¹æ·¶
IEC 61400-24-2010 ¡¡·çÁ¦·¢µç»ú×é- µÚ24 ²¿·Ö: À×µç·À»¤
IEC 62305-1 -2006¡¡À×µç·À»¤- µÚ1 ²¿·Ö£º×ÜÔò
IEC 62305-3 -2006¡¡À×µç·À»¤- µÚ3 ²¿·Ö£ºÐÞ½¨ÎïµÄʵÌåË𺦺ÍÉúÃüΣÏÕ
IEC 62305-4 -2006¡¡À×µç·À»¤- µÚ4 ²¿·Ö£ºÐÞ½¨ÎïÄÚµçÆøºÍµç×Óϵͳ
GL£¨2010£©¡¡·çÁ¦·¢µç»ú×éÈÏÖ¤Ö¸ÄÏ£¨2010£©
˼Á¿»ú×éµÄ½á¹¹Ìص㣬£¬£¬£¬£¬´ÓÆä×ÔÉí¼ÛÖµ¼°ÔâÊÜÀ×»÷ºó¿ÉÄܱ¬·¢µÄÖ±½ÓºÍ¼ä½ÓËðʧ£¬£¬£¬£¬£¬ÍŽáÍâÑó¶Ô»ú×é·ÀÀׯ·¼¶µÄ»®·Ö£¬£¬£¬£¬£¬·çÁ¦·¢µç»ú×é²ÎÕÕ×îÑÏ¿áÆ·¼¶¾ÙÐзÀÀ×£¬£¬£¬£¬£¬²¢Ë³Ó¦ÓëËùÓеÄÀ×±©ÇøÓò¡£¡£¡£¡£¡£¡£¡£ÒÀ¾ÝIEC 62305.1—2006¡¶À×µç·À»¤ µÚ1 ²¿·Ö£º×ÜÔò¡·µÚ°ËյϮ¶¨£¬£¬£¬£¬£¬½ÓÄÉÀ×µç·À»¤Ë®Æ½À×µç·À»¤Æ·¼¶¢ñµÄ·À»¤±ê×¼¾ÙÐб£»£»£»£»£»£»¤¡£¡£¡£¡£¡£¡£¡£
GB 50057-94£¨2010£©¡¡ÐÞ½¨Îï·ÀÀ×Éè¼Æ¹æ·¶
IEC 61400-24-2010 ¡¡·çÁ¦·¢µç»ú×é- µÚ24 ²¿·Ö: À×µç·À»¤
IEC 62305-1 -2006¡¡À×µç·À»¤- µÚ1 ²¿·Ö£º×ÜÔò
IEC 62305-3 -2006¡¡À×µç·À»¤- µÚ3 ²¿·Ö£ºÐÞ½¨ÎïµÄʵÌåË𺦺ÍÉúÃüΣÏÕ
IEC 62305-4 -2006¡¡À×µç·À»¤- µÚ4 ²¿·Ö£ºÐÞ½¨ÎïÄÚµçÆøºÍµç×Óϵͳ
GL£¨2010£©¡¡·çÁ¦·¢µç»ú×éÈÏÖ¤Ö¸ÄÏ£¨2010£©
˼Á¿»ú×éµÄ½á¹¹Ìص㣬£¬£¬£¬£¬´ÓÆä×ÔÉí¼ÛÖµ¼°ÔâÊÜÀ×»÷ºó¿ÉÄܱ¬·¢µÄÖ±½ÓºÍ¼ä½ÓËðʧ£¬£¬£¬£¬£¬ÍŽáÍâÑó¶Ô»ú×é·ÀÀׯ·¼¶µÄ»®·Ö£¬£¬£¬£¬£¬·çÁ¦·¢µç»ú×é²ÎÕÕ×îÑÏ¿áÆ·¼¶¾ÙÐзÀÀ×£¬£¬£¬£¬£¬²¢Ë³Ó¦ÓëËùÓеÄÀ×±©ÇøÓò¡£¡£¡£¡£¡£¡£¡£ÒÀ¾ÝIEC 62305.1—2006¡¶À×µç·À»¤ µÚ1 ²¿·Ö£º×ÜÔò¡·µÚ°ËյϮ¶¨£¬£¬£¬£¬£¬½ÓÄÉÀ×µç·À»¤Ë®Æ½À×µç·À»¤Æ·¼¶¢ñµÄ·À»¤±ê×¼¾ÙÐб£»£»£»£»£»£»¤¡£¡£¡£¡£¡£¡£¡£

3.1.2 ×ۺϷÀÀ×ϵͳ¡£¡£¡£¡£¡£¡£¡£·çÁ¦·¢µç»ú×éµÄ·ÀÀ×±£»£»£»£»£»£»¤ÊǸö×ۺϵķÀÀ×ϵͳ¡£¡£¡£¡£¡£¡£¡£°üÀ¨Íⲿ¡¢ÄÚ²¿·ÀÀ×ϵͳ£¬£¬£¬£¬£¬Õë¶Ô²î±ð·ÀÀ×ÇøÓò½ÓÄÉÓÐÓõķÀ»¤ÊֶΣ¬£¬£¬£¬£¬Ö÷Òª°üÀ¨À×µç½ØÊպʹ«µ¼ÏµÍ³¡¢¹ýµçѹ±£»£»£»£»£»£»¤ºÍµÈµçλÅþÁ¬¡¢µç¿ØÏµÍ³·ÀÀ׵Ȳ½·¥£¬£¬£¬£¬£¬ÕâЩ·À»¤²½·¥¶¼³ä·Ö˼Á¿ÁËÀ×µçµÄÌØµã£¬£¬£¬£¬£¬Êµ¼ù֤ʵÕâÒ»ÒªÁì¼òÆÓ¶øÓÐÓᣡ£¡£¡£¡£¡£¡£·ÀÀ×ϵͳµÄ×é˽¼ûÏÂͼ6 Ëùʾ¡£¡£¡£¡£¡£¡£¡£

3.2 »ú²Õ¶¥²¿½ÓÉÁÆ÷µÄÉè¼Æ
»ú²ÕµÄ¶¥²¿£¬£¬£¬£¬£¬ÉèÖÃÓзçÏò±ê¡¢·çËÙÒÇ¡£¡£¡£¡£¡£¡£¡£ÎªÁËïÔÌÒò²à»÷À×Ôì³É·çÏò±ê¡¢·çËÙÒǺͻú²ÕÄÚ×°±¸µÄË𻵣¬£¬£¬£¬£¬Ó¦ÔÚ»ú²Õ¶¥²¿×°Éè½ÓÉÁÆ÷£¬£¬£¬£¬£¬±£»£»£»£»£»£»¤·çÏò±ê¡¢·çËÙÒǺͻú²ÕÄÚµÄ×°±¸¡£¡£¡£¡£¡£¡£¡£
3.3 µÈµçλÅþÁ¬
µÈµçλÅþÁ¬ÊÇ·çÁ¦·¢µç»ú×é·ÀÀ×ÊÂÇéµÄ½¹µã£¬£¬£¬£¬£¬Êǰü¹ÜÀ×µçÁ÷ͨ·Á÷ͨµÄÒªº¦¡£¡£¡£¡£¡£¡£¡£
ΪÁ˼õС¸÷½ðÊô×°±¸Ö®¼äµÄµçλ²î£¬£¬£¬£¬£¬¶Ô»ú×éµÄËùÓÐÍâ¶½ðÊô²¿·Ö£¬£¬£¬£¬£¬½ÓÄɵȵçλÅþÁ¬²½·¥¡£¡£¡£¡£¡£¡£¡£ÂÖ챡¢»ú²Õ¡¢ËþͲÄÚ½¨ÉèµÈµçλÅþÁ¬ÍøÂ磬£¬£¬£¬£¬ÄÚ²¿Ö÷Òª½ðÊô¹¹½¨¡¢½ðÊô¹ÜµÀÒÔ¼°Ïß·ÆÁÕϾùÓ¦½ÓÄɵȵçλÅþÁ¬¡£¡£¡£¡£¡£¡£¡£ÉèÖõȵçλĸÅÅ¡£¡£¡£¡£¡£¡£¡£ÑÓÉìµ½»ú²Õ¡¢ËþͲÍⲿµÄµçÆøºÍ¿ØÖÆÏµÍ³µç·Ӧ²¼ÉèÔÚ½ðÊô¹ÜµÀÄÚ, ½ðÊô¹ÜµÀÓ¦ÓëÒýÏÂÏßϵͳÏàÁ¬£¬£¬£¬£¬£¬µçÆøºÍ¿ØÖÆÏµÍ³µç·Ӧ½ÓÄɹýµçѹ±£»£»£»£»£»£»¤²½·¥¡£¡£¡£¡£¡£¡£¡£
3.4 ÑØº£¼°º£ÉϵĻú×é·ÀÀײ½·¥
Õë¶Ôº£ÉϵÄÑÎÎíÇéÐΣ¬£¬£¬£¬£¬¶Ô·ÀÀס¢½ÓµØ×°ÖõĽðÊô½á¹¹¼þ×öÐëÒªµÄ·À¸¯´¦Öóͷ££¬£¬£¬£¬£¬²¢ÇÒ¶ÔµçÀÂо¼°½ÓÏß¶Ë×Ó×ö·À¸¯´¦Öóͷ££¬£¬£¬£¬£¬ËùÓеĵçÓ¿±£»£»£»£»£»£»¤Æ÷¾ùҪͨ¹ý¿¹ÑÎÎíÊÔÑé¡£¡£¡£¡£¡£¡£¡£
3.5 ÔöÇ¿¶Ô·ÀÀ×Óë½ÓµØ×°Öõļì²éÓëά»¤
·çÁ¦·¢µç»ú×éµÄÉè¼ÆÊÙÃüÖÁÉÙΪ20 Ä꣬£¬£¬£¬£¬Îª°ü¹Ü»ú×éµÄ·ÀÀ×ϵͳÕý³£ÊÂÇ飬£¬£¬£¬£¬Òª°´ÆÚ¶Ô·ÀÀ×Óë½ÓµØ×°ÖþÙÐмì²é£¬£¬£¬£¬£¬Ö÷Òª¼ì²éµÄ¹¤¾ßÓУº¸÷µç¿Ø¹ñÄÚµçÓ¿±£»£»£»£»£»£»¤Æ÷¡¢¸÷Á㲿¼þ¼°×°±¸¼äµÄµÈµçλÅþÁ¬µ¼Ïß¡¢»ú×éµÄ½ÓµØµç×èÖµµÈ¡£¡£¡£¡£¡£¡£¡£
»ú²ÕµÄ¶¥²¿£¬£¬£¬£¬£¬ÉèÖÃÓзçÏò±ê¡¢·çËÙÒÇ¡£¡£¡£¡£¡£¡£¡£ÎªÁËïÔÌÒò²à»÷À×Ôì³É·çÏò±ê¡¢·çËÙÒǺͻú²ÕÄÚ×°±¸µÄË𻵣¬£¬£¬£¬£¬Ó¦ÔÚ»ú²Õ¶¥²¿×°Éè½ÓÉÁÆ÷£¬£¬£¬£¬£¬±£»£»£»£»£»£»¤·çÏò±ê¡¢·çËÙÒǺͻú²ÕÄÚµÄ×°±¸¡£¡£¡£¡£¡£¡£¡£
3.3 µÈµçλÅþÁ¬
µÈµçλÅþÁ¬ÊÇ·çÁ¦·¢µç»ú×é·ÀÀ×ÊÂÇéµÄ½¹µã£¬£¬£¬£¬£¬Êǰü¹ÜÀ×µçÁ÷ͨ·Á÷ͨµÄÒªº¦¡£¡£¡£¡£¡£¡£¡£
ΪÁ˼õС¸÷½ðÊô×°±¸Ö®¼äµÄµçλ²î£¬£¬£¬£¬£¬¶Ô»ú×éµÄËùÓÐÍâ¶½ðÊô²¿·Ö£¬£¬£¬£¬£¬½ÓÄɵȵçλÅþÁ¬²½·¥¡£¡£¡£¡£¡£¡£¡£ÂÖ챡¢»ú²Õ¡¢ËþͲÄÚ½¨ÉèµÈµçλÅþÁ¬ÍøÂ磬£¬£¬£¬£¬ÄÚ²¿Ö÷Òª½ðÊô¹¹½¨¡¢½ðÊô¹ÜµÀÒÔ¼°Ïß·ÆÁÕϾùÓ¦½ÓÄɵȵçλÅþÁ¬¡£¡£¡£¡£¡£¡£¡£ÉèÖõȵçλĸÅÅ¡£¡£¡£¡£¡£¡£¡£ÑÓÉìµ½»ú²Õ¡¢ËþͲÍⲿµÄµçÆøºÍ¿ØÖÆÏµÍ³µç·Ӧ²¼ÉèÔÚ½ðÊô¹ÜµÀÄÚ, ½ðÊô¹ÜµÀÓ¦ÓëÒýÏÂÏßϵͳÏàÁ¬£¬£¬£¬£¬£¬µçÆøºÍ¿ØÖÆÏµÍ³µç·Ӧ½ÓÄɹýµçѹ±£»£»£»£»£»£»¤²½·¥¡£¡£¡£¡£¡£¡£¡£
3.4 ÑØº£¼°º£ÉϵĻú×é·ÀÀײ½·¥
Õë¶Ôº£ÉϵÄÑÎÎíÇéÐΣ¬£¬£¬£¬£¬¶Ô·ÀÀס¢½ÓµØ×°ÖõĽðÊô½á¹¹¼þ×öÐëÒªµÄ·À¸¯´¦Öóͷ££¬£¬£¬£¬£¬²¢ÇÒ¶ÔµçÀÂо¼°½ÓÏß¶Ë×Ó×ö·À¸¯´¦Öóͷ££¬£¬£¬£¬£¬ËùÓеĵçÓ¿±£»£»£»£»£»£»¤Æ÷¾ùҪͨ¹ý¿¹ÑÎÎíÊÔÑé¡£¡£¡£¡£¡£¡£¡£
3.5 ÔöÇ¿¶Ô·ÀÀ×Óë½ÓµØ×°Öõļì²éÓëά»¤
·çÁ¦·¢µç»ú×éµÄÉè¼ÆÊÙÃüÖÁÉÙΪ20 Ä꣬£¬£¬£¬£¬Îª°ü¹Ü»ú×éµÄ·ÀÀ×ϵͳÕý³£ÊÂÇ飬£¬£¬£¬£¬Òª°´ÆÚ¶Ô·ÀÀ×Óë½ÓµØ×°ÖþÙÐмì²é£¬£¬£¬£¬£¬Ö÷Òª¼ì²éµÄ¹¤¾ßÓУº¸÷µç¿Ø¹ñÄÚµçÓ¿±£»£»£»£»£»£»¤Æ÷¡¢¸÷Á㲿¼þ¼°×°±¸¼äµÄµÈµçλÅþÁ¬µ¼Ïß¡¢»ú×éµÄ½ÓµØµç×èÖµµÈ¡£¡£¡£¡£¡£¡£¡£
4.С½á
“Ô¤·ÀʤÓÚÖÎÀí”ÊǶԷÀÀ×ÊÂÇé×îºÃµÄÚ¹ÊÍ£¬£¬£¬£¬£¬×ÝÈ»½ÏÁ¿ÍêÉÆµÄ·ÀÀ×ϵͳÒѾ½¨É裬£¬£¬£¬£¬Õվɲ»¿É¹»ÍêÈ«µÖÓùÀ×»÷µÄΣº¦¡£¡£¡£¡£¡£¡£¡£ÒÔÊÇ£¬£¬£¬£¬£¬ÔÚ·çÁ¦·¢µç»ú×éÆÕ±é½ÓÄÉÓÐÓõķÀÀ×±£»£»£»£»£»£»¤ÊÖÒÕµÄͬʱ£¬£¬£¬£¬£¬ ΪÁËÖ»¹ÜïÔÌ·çÁ¦·¢µç»ú×éÔâÊÜÀ×»÷µÄΣÏÕ£¬£¬£¬£¬£¬ ½¨ÒéÔÚ·ç»ú×°ÖÃ֮ǰ£¬£¬£¬£¬£¬¼´¾ÙÐзçµç³¡µÄÍýÏëÉè¼Æ¼°Î¢¹Ûѡַʱ£¬£¬£¬£¬£¬½«·ç»úµÄ·ÀÀ××÷ΪӰÏìÒòËØÖ®Ò»¼ÓÒÔ˼Á¿£¬£¬£¬£¬£¬´Ó¶øÈ·±£·çÁ¦·¢µç»ú×éÇå¾²ÓÐÓõÄÔËÐС£¡£¡£¡£¡£¡£¡£

